Pilecap adalah sebuah struktur untuk menyatukan kekuatan dari pondasi tiang ataupun pondasi sumuran. Posisinya berada di atas pondasi dan merupakan bagian dari pondasi tersebut.
Pilecap berfungsi untuk menyalurkan/membagi beban dari kolom ke pondasi tiang di bawahnya.
Pilecap terbuat dari beton bertulang dengan bentuk umum persegi, trapesium, segitiga atau menyesuaikan susunan dari tiang pancang/tiang bor yang dicovernya.
Penulangan pada Pilecap dipengaruhi oleh beberapa faktor diantaranya:
- Bentuk susunan pondasi tiang
- Besarnya gaya geser dan momen
- Diameter tulangan pondasi (panjang penyaluran)
- Diameter tulangan kolom (panjang penyaluran)
Langkah-langkah pengerjaan pilecap adalah sebagai berikut:
- Menggali tanah sesuai kedalaman pilecap + lantai kerja + lapisan pasir bawah
- Pemotongan beton tiang pancang/tiang bor untuk mengeluarkan stek sesuai panjang penyaluran tulangan yang dibutuhkan
- Penghamparan pasir lapisan bawah pondasi sekitar 5-10 cm
- Pembuatan lantai kerja dengan tebal 5-10 cm
- Pembuatan bekisting pilecap (biasanya merupakan bekisting permanen dari batako)
- Pemasangan tulangan pilecap
- Pengecoran
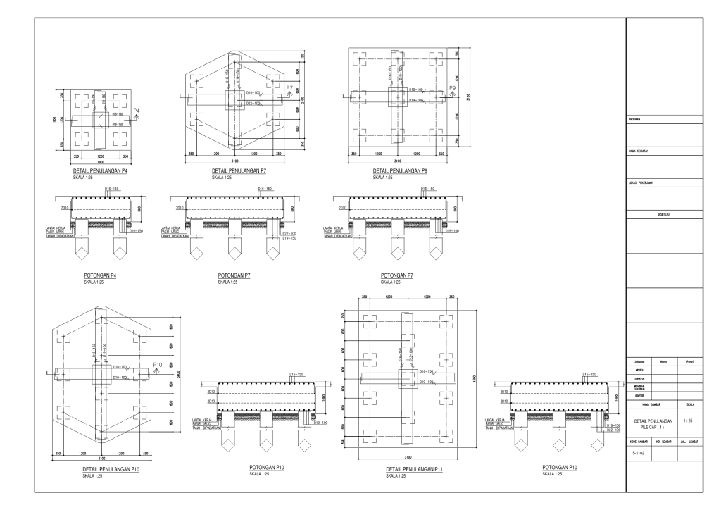
Berikut ini adalah contoh penulangan pondasi pilecap. Untuk format dalam pdf silakan download disini.
Disclaimer: Setiap bangunan itu unik, kami tidak bertanggungjawab atas penggunaan gambar ini untuk konstruksi bangunan Anda. Silakan konsultasikan ke ahlinya.





dapat digunakan untuk apa saja kah benda ini ?
Ini pilecap untuk pondasi bangunan.
Pak afret.. nanya, boleh gak pile cap 2 file, kita hitung sebagai balok.. sehingga bisa hemat tidak memerlukan pile cap yang tebal. Karena geser di bantu tulangan sengkang
Ternayata nanya disini. Sudah kita bahas kemarin. ^_^
Pak afret.. nanya, boleh gak pile cap 2 file, kita hitung sebagai balok.. sehingga bisa hemat tidak memerlukan pile cap yang tebal. Karena geser di bantu tulangan sengkang