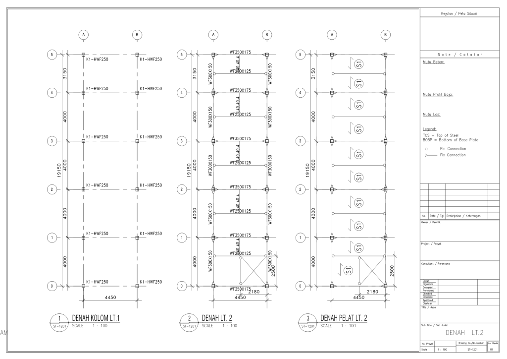
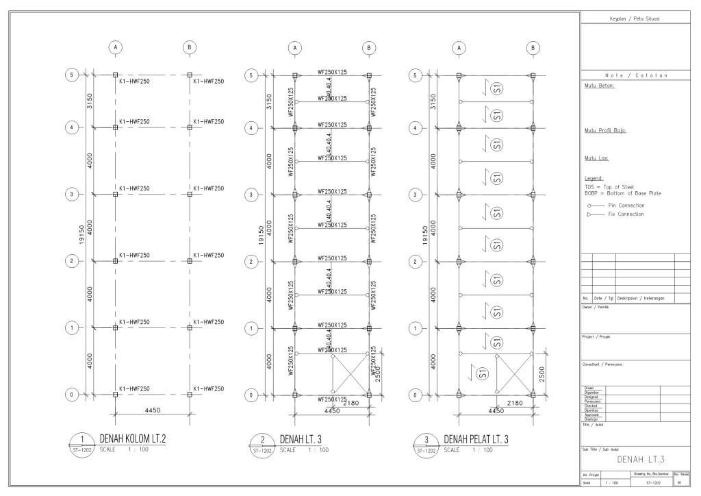
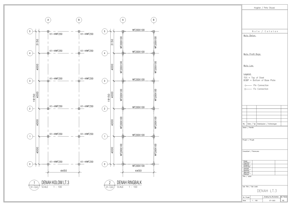
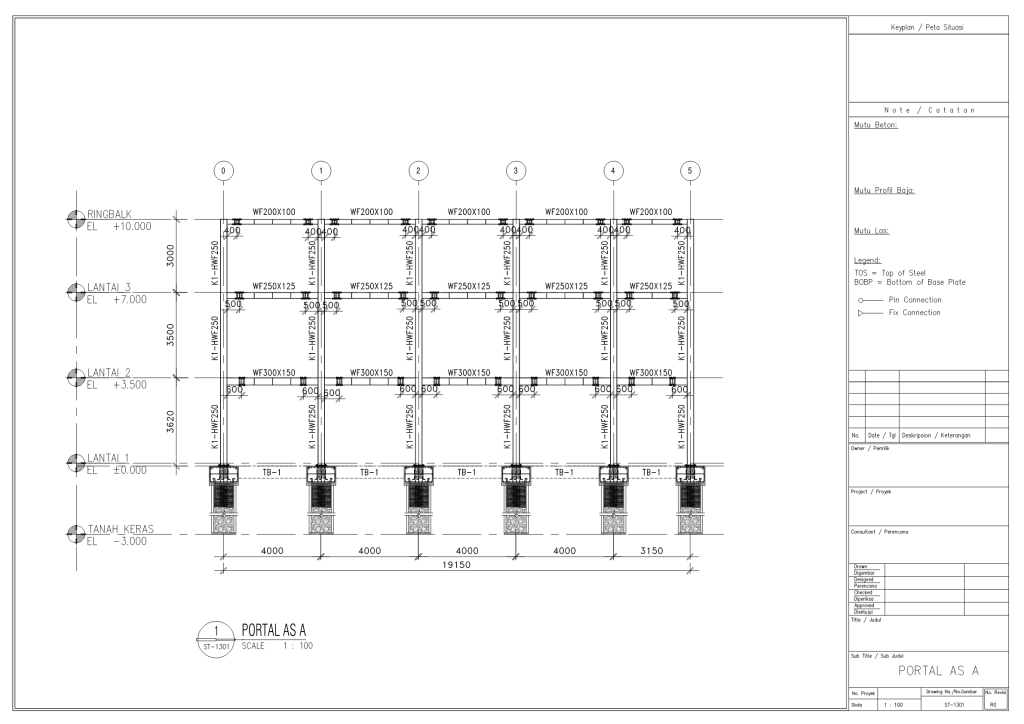
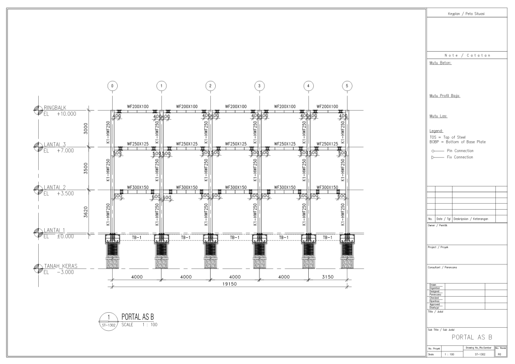
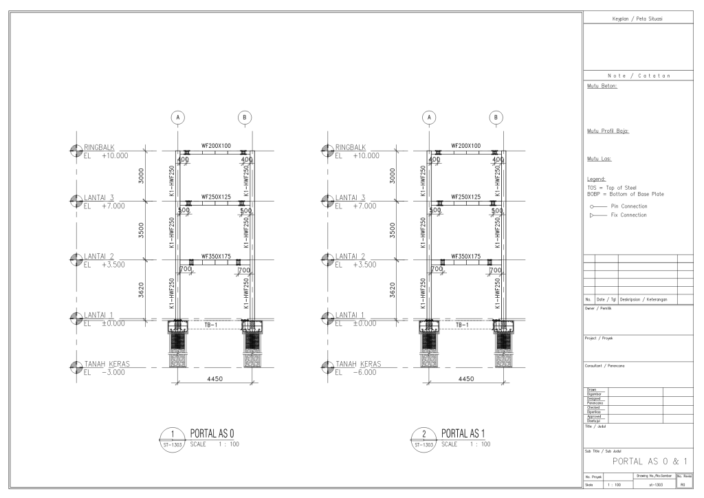
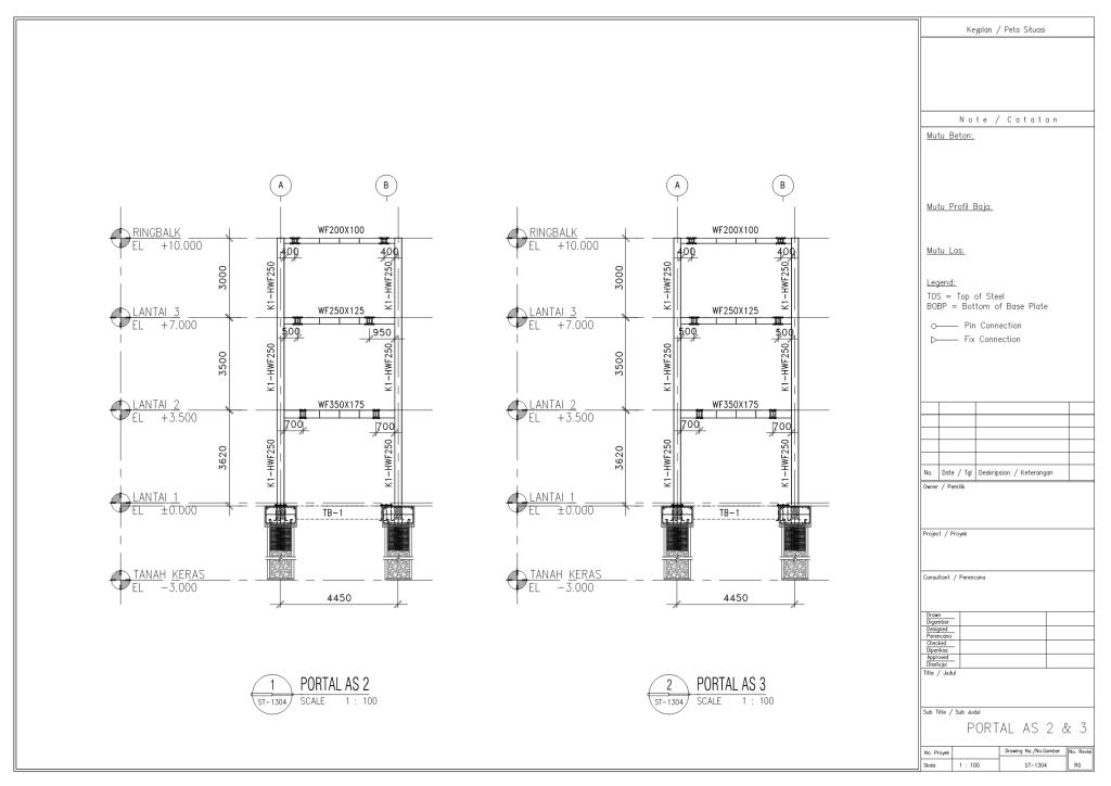
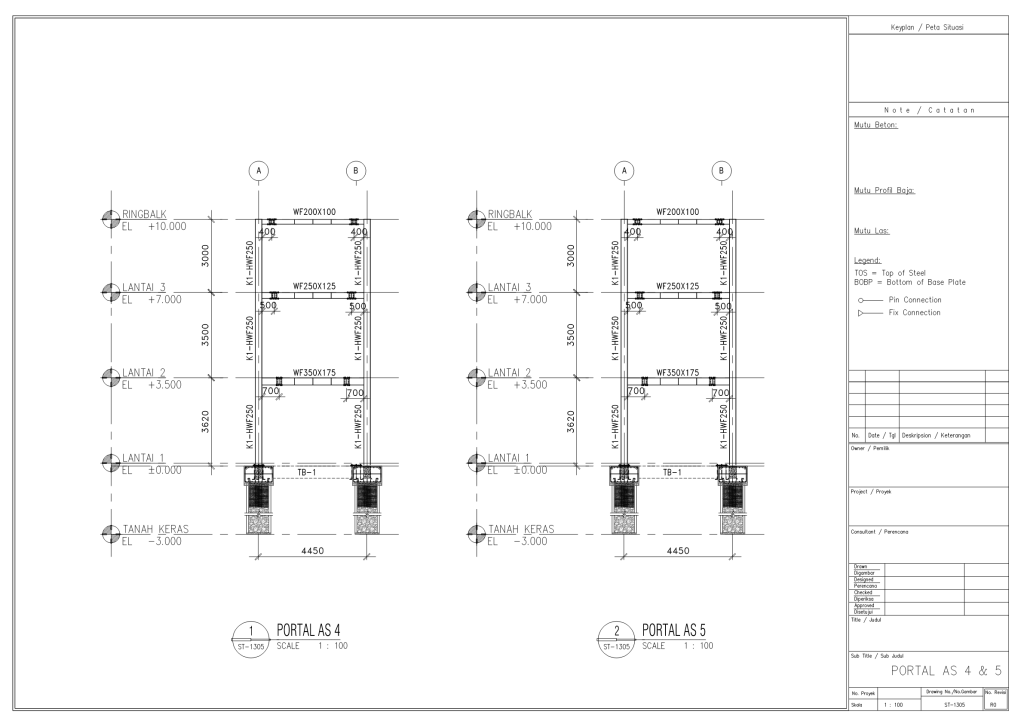
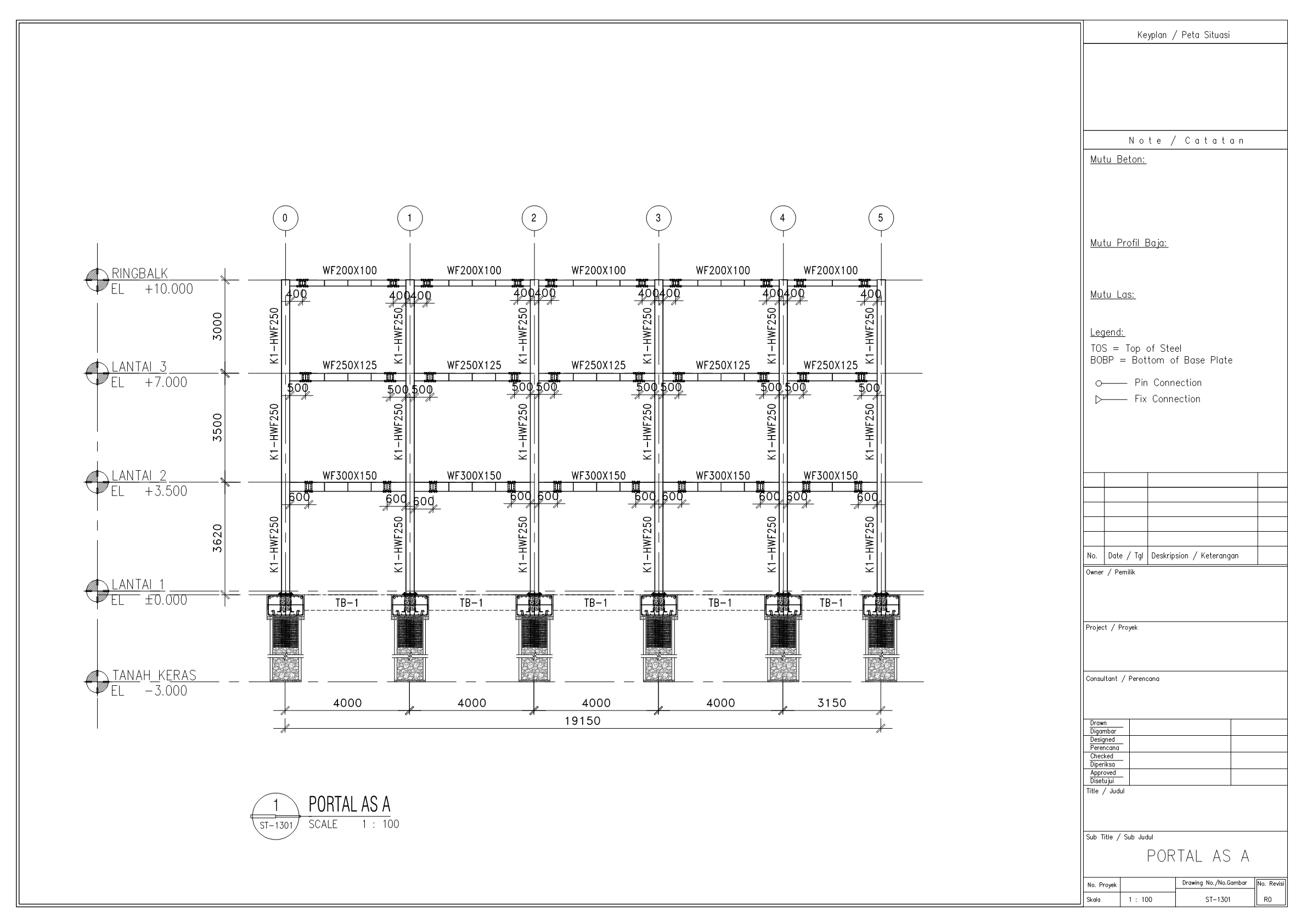
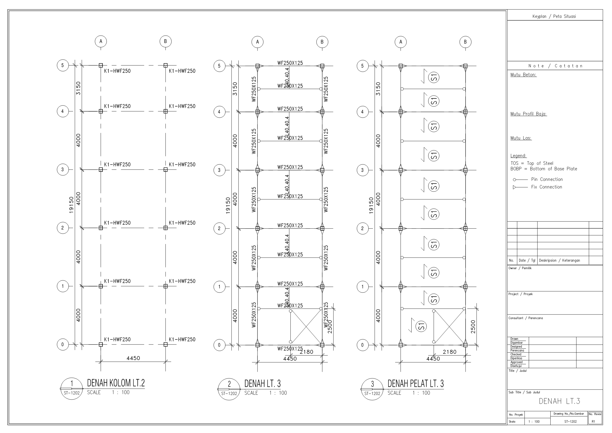
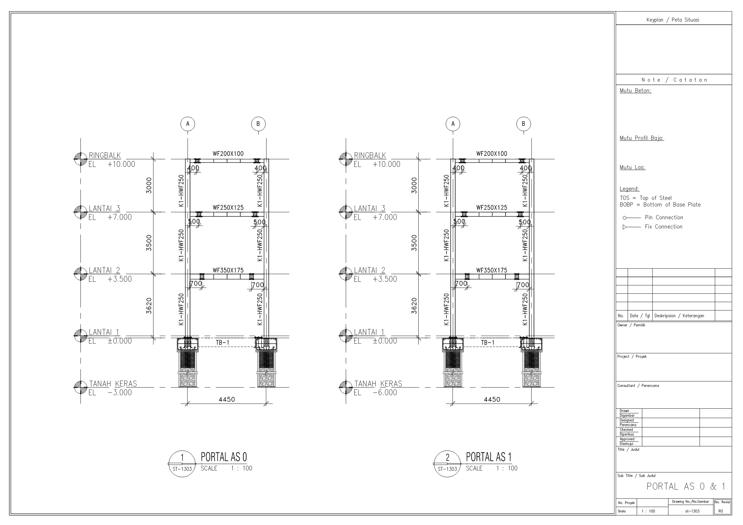
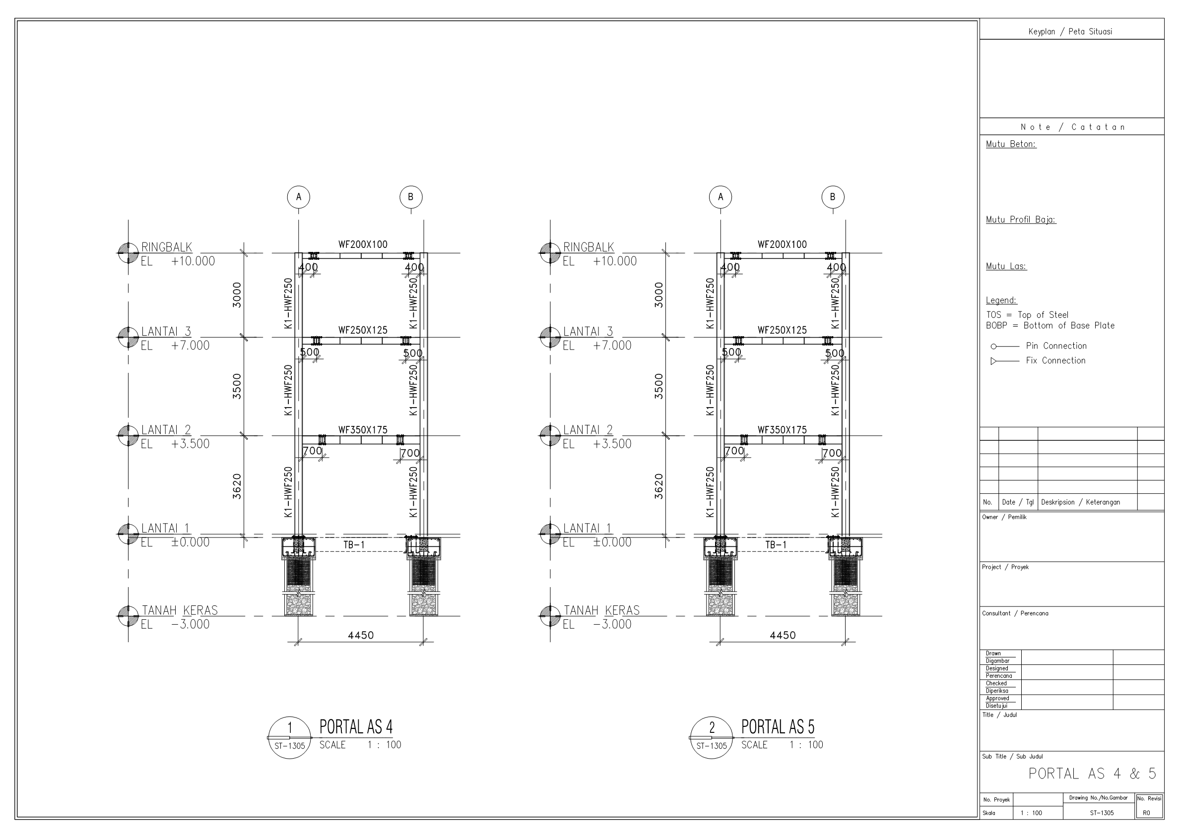
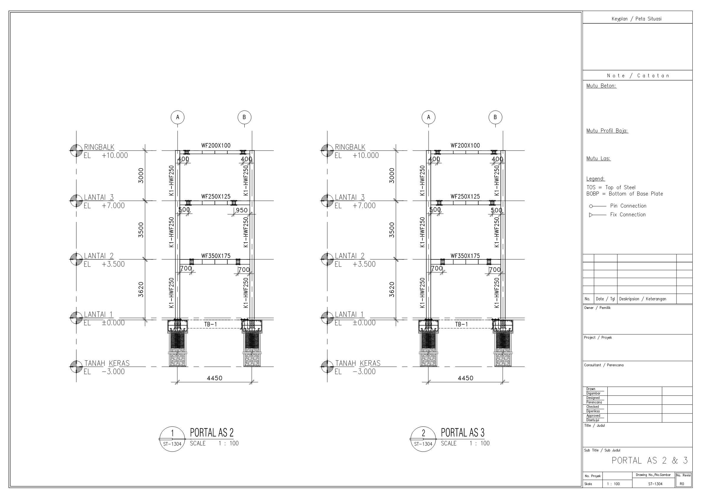
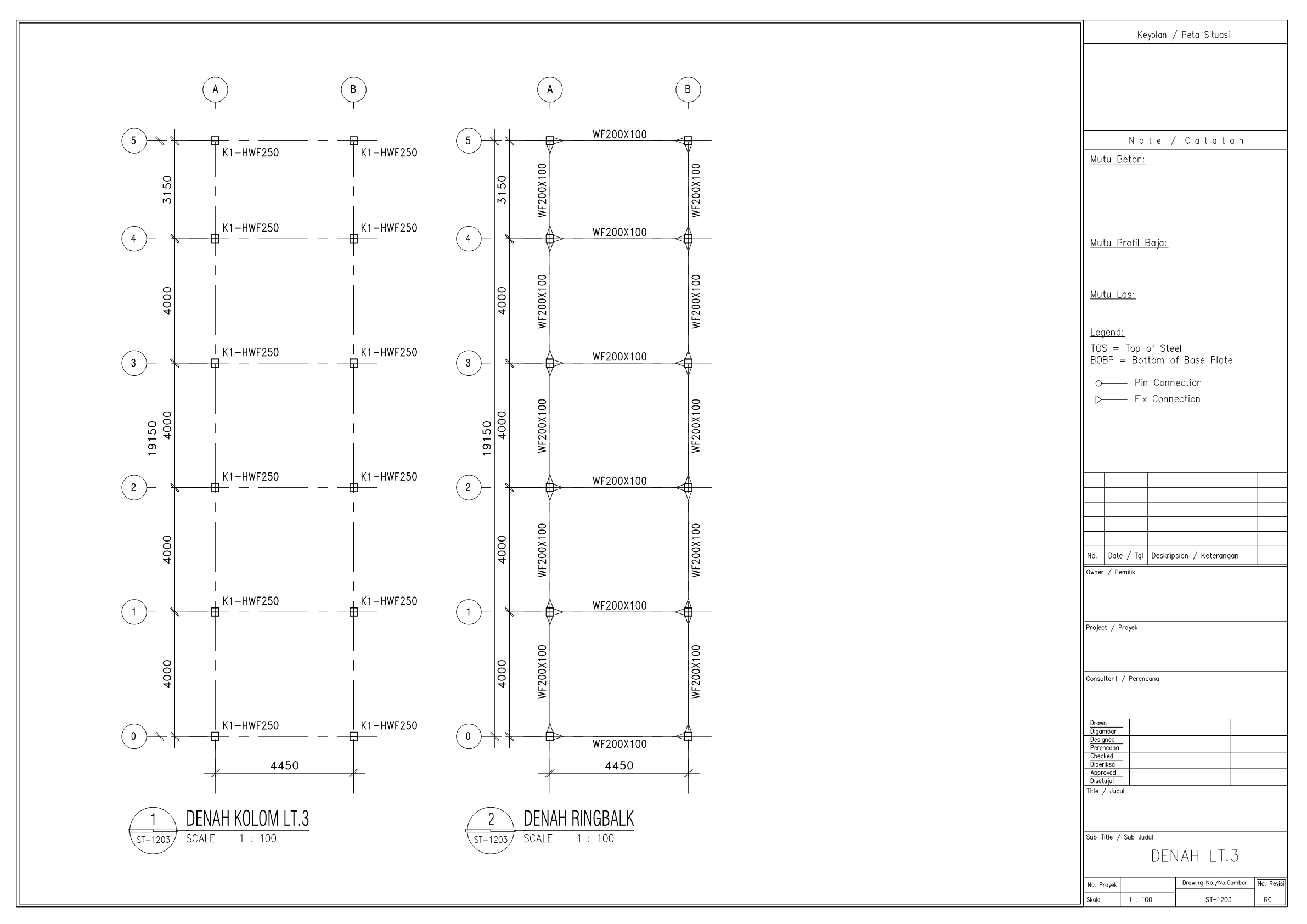
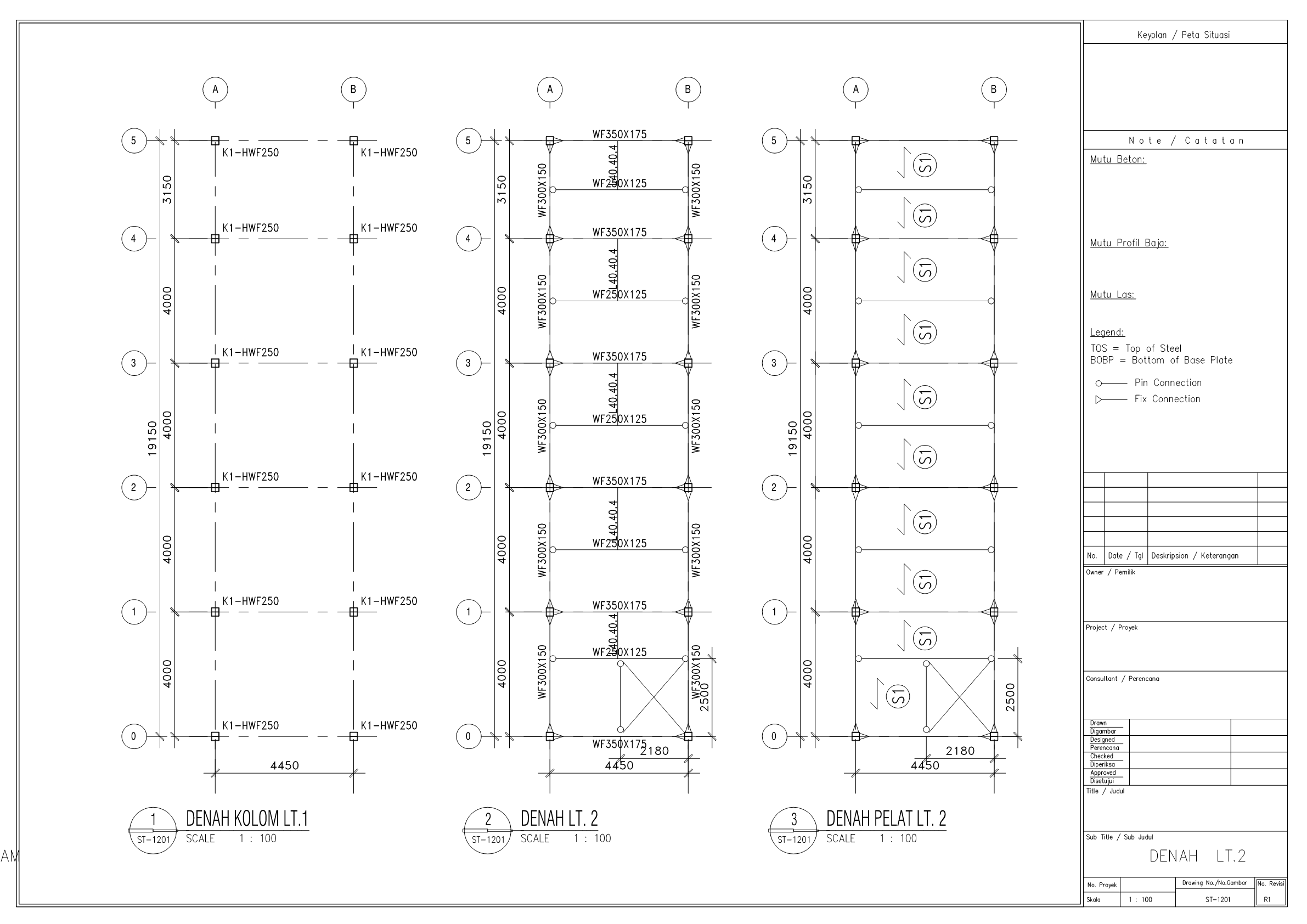
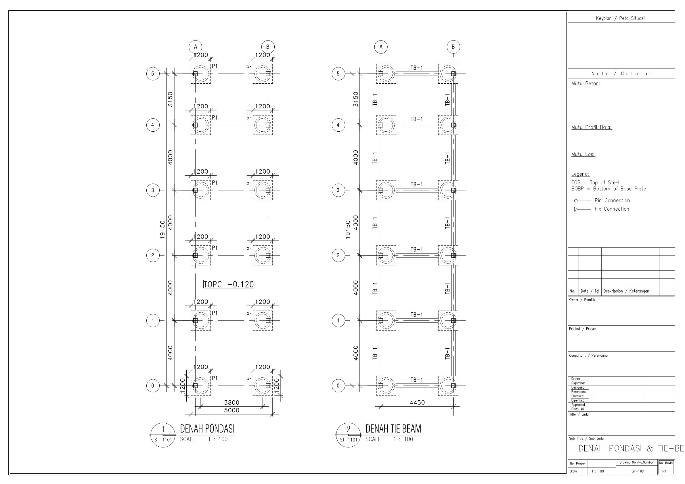
Struktur bangunan baja 3 lantai dengan ukuran denah 4.45 x 19.15 m. Tinggi antar lantai berturut-turut adalah 3.62 m, 3.50 m, 3.00 m.
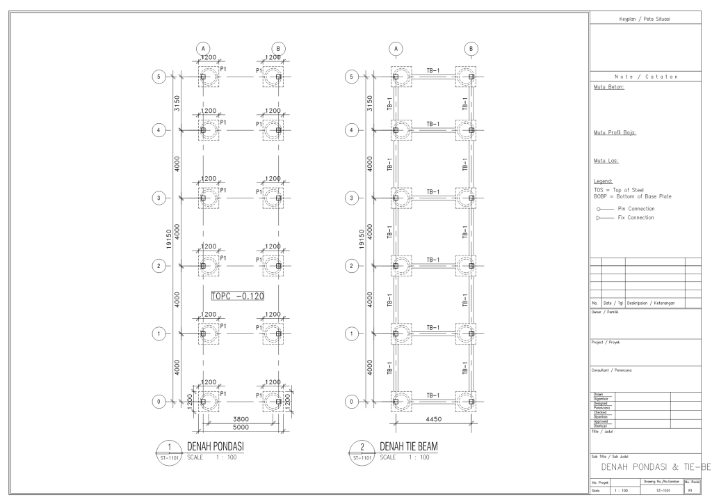
Pondasi menggunakan jenis pondasi kedalaman sedang yaitu pondasi sumuran dengan diamater 1 meter dan kedalaman 3 meter.
Kolom menggunakan HWF240, balok menggunakan IWF300x150, IWF350x175, dan IWF 250×125.
Sambungan balok kolom menggunakan sambungan fix berupa sambungan splice.
Ini salah satu contoh format penggambaran struktur baja dimana denah berupa garis tunggal (single line) dan di kedua ujung balok ada simbol sambungannya.
Untuk pembacaan gambar dengan teknik seperti ini cukup mudah, namun perlu diterjemahkan ke dalam shop drawing untuk melihat ukuran balok dan kolom sebenarnya. Apakah terjadi clash atau tidak.
Silakan download contoh gambar struktur bangunan baja 3 lantai disini.
Disclaimer: Setiap bangunan itu unik, kami tidak bertanggungjawab atas penggunaan gambar ini untuk konstruksi bangunan Anda. Silakan konsultasikan ke ahlinya.












Apakah saya bisa mendapatkan perkiraan biaya kebutuhan baja untuk pembangunan rumah kos 3 lantai dg luas tanah 10 x 20 meter ?
Mohon Hubungi 085729023535