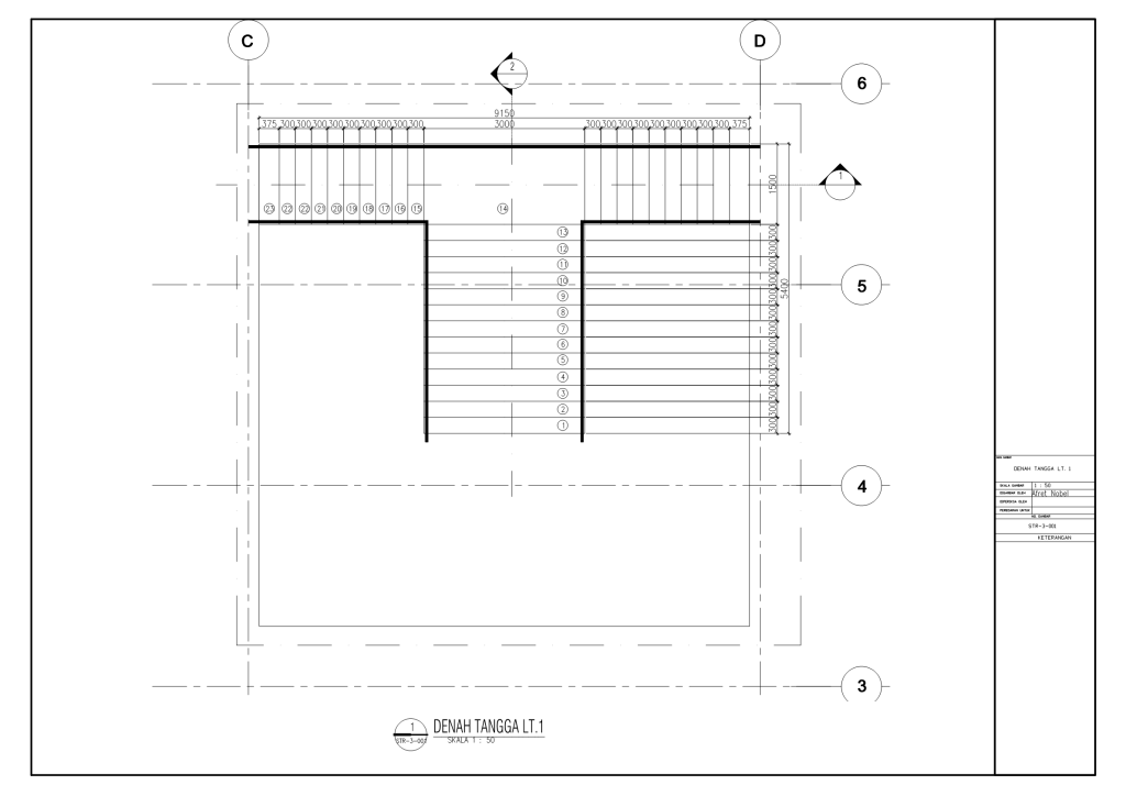
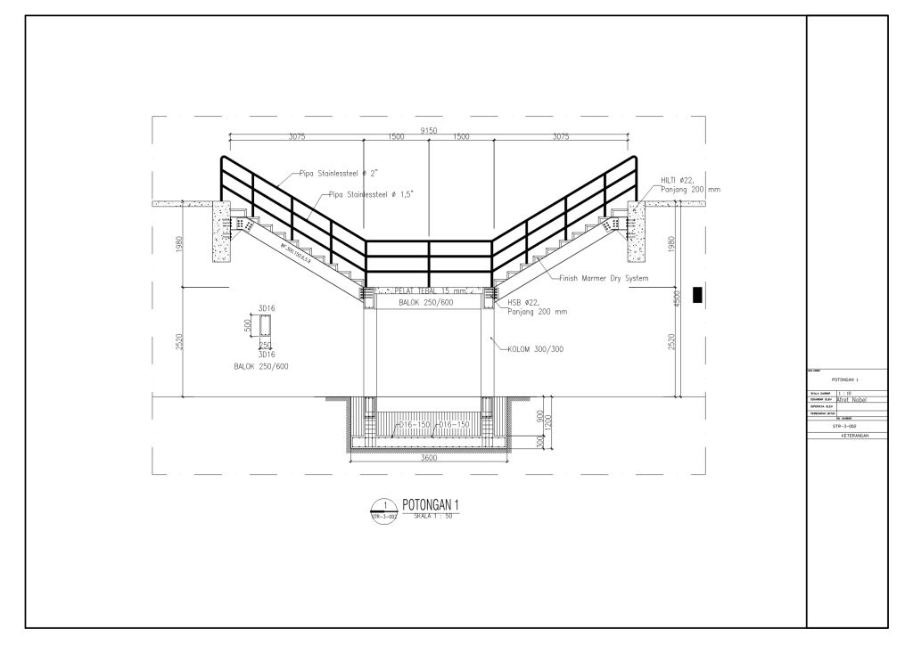
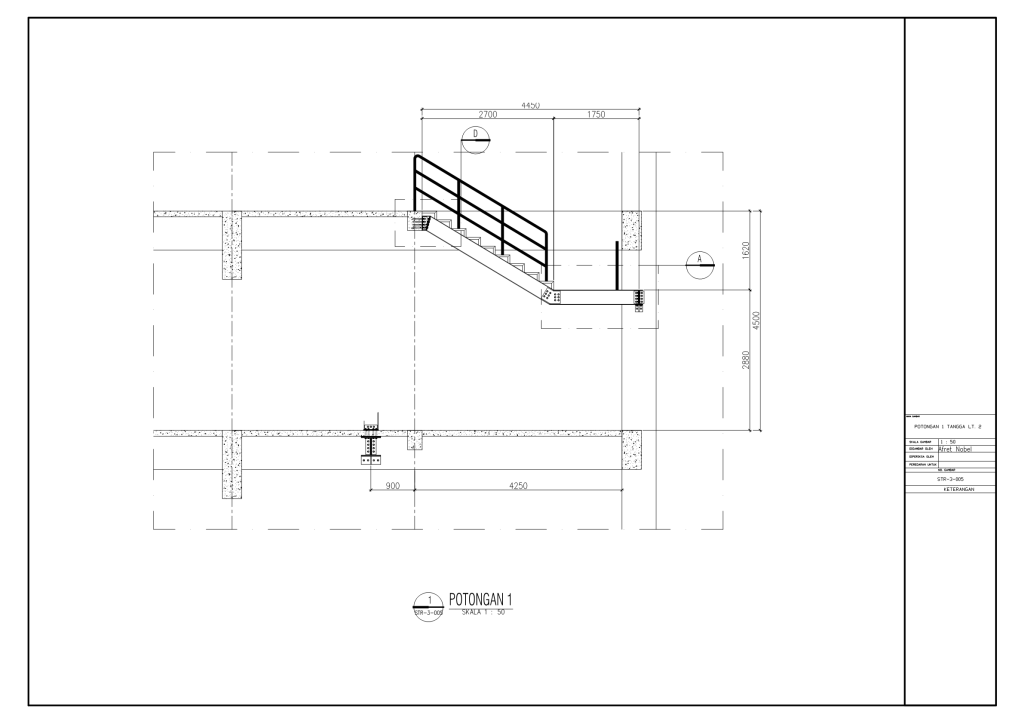
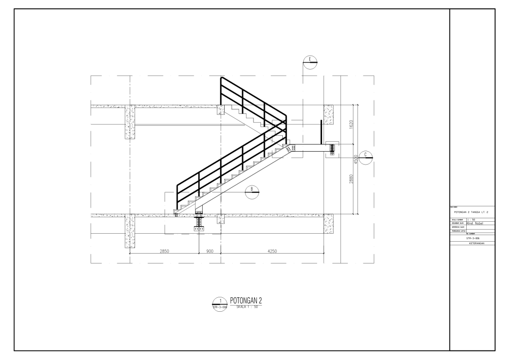
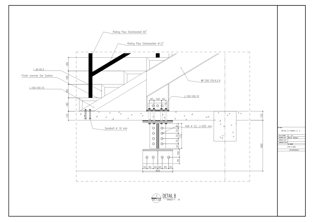
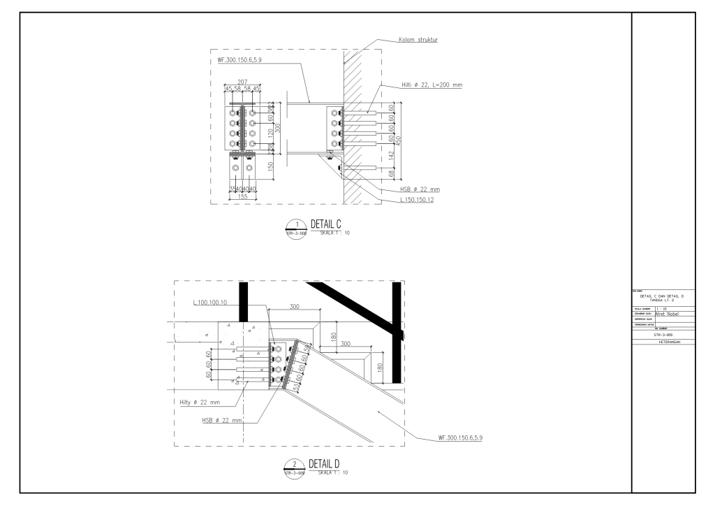
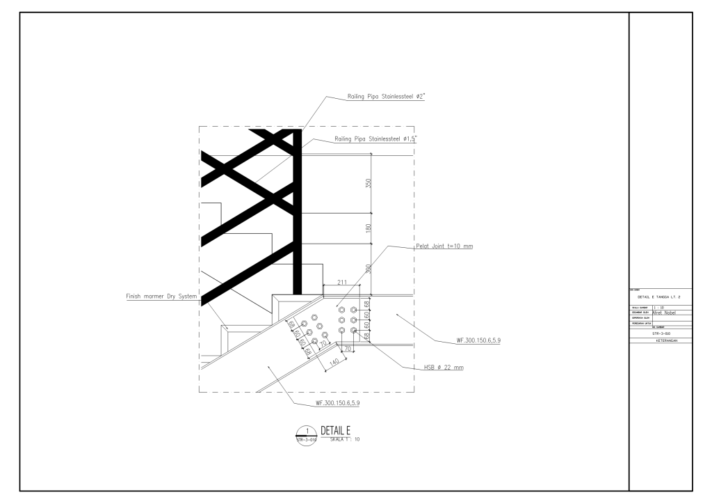
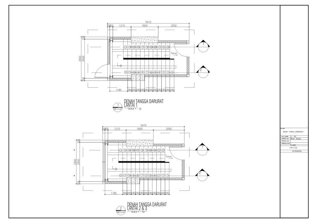
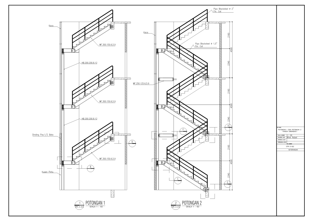
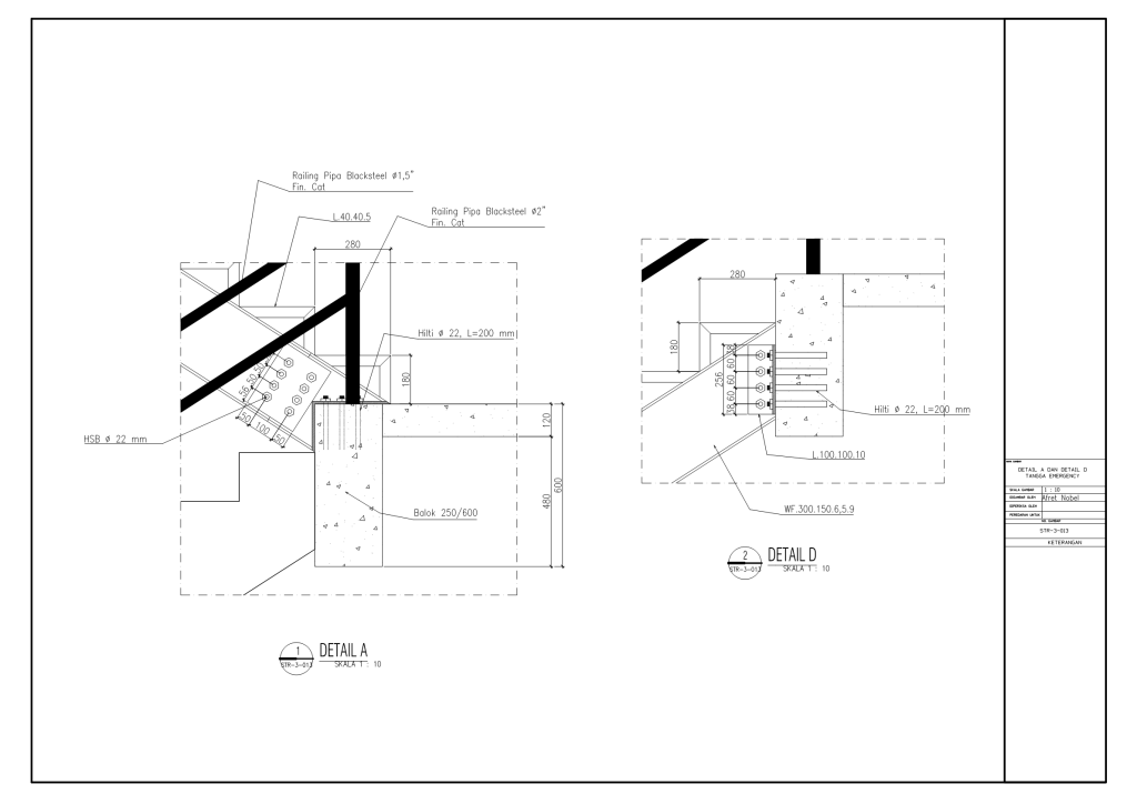
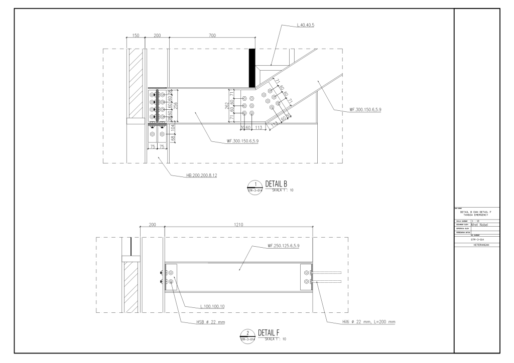
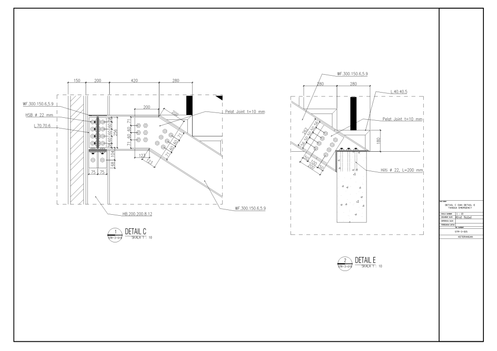
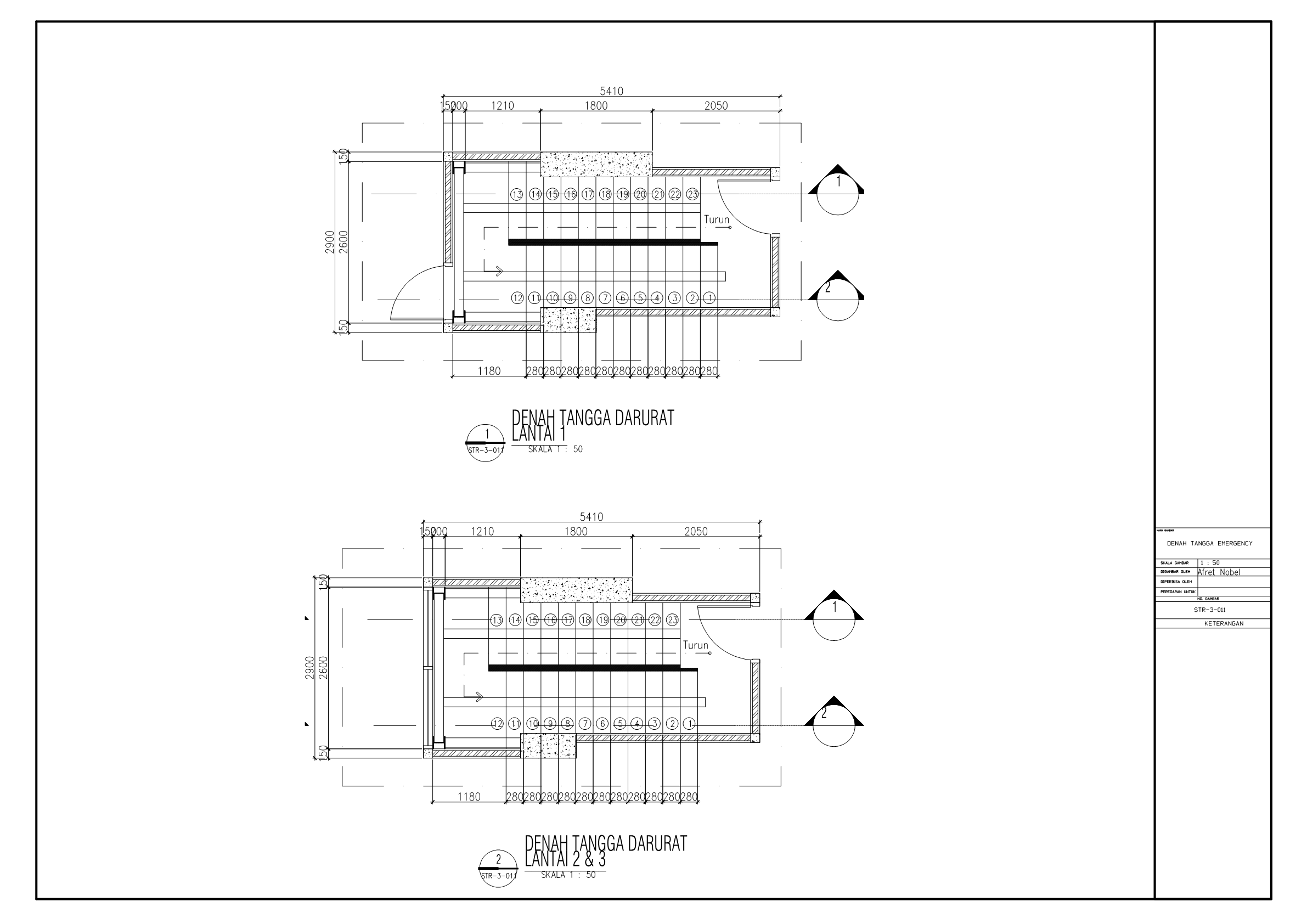
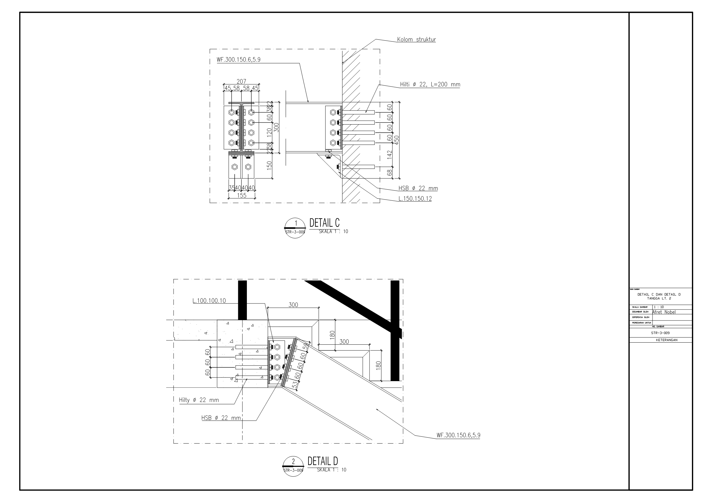
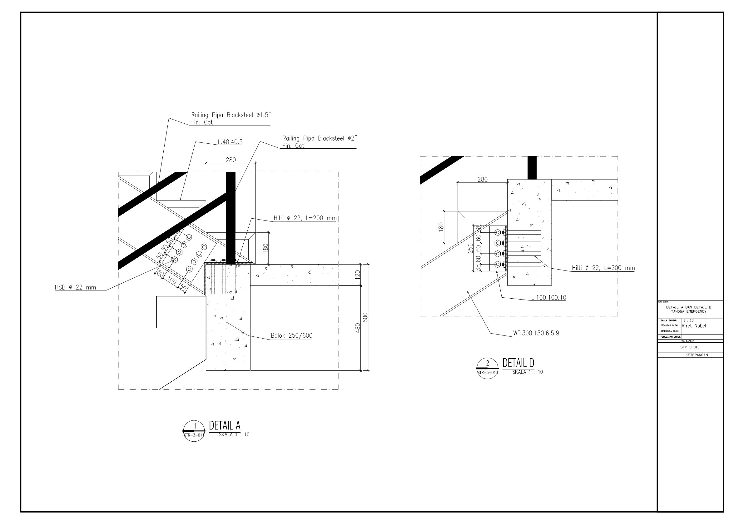
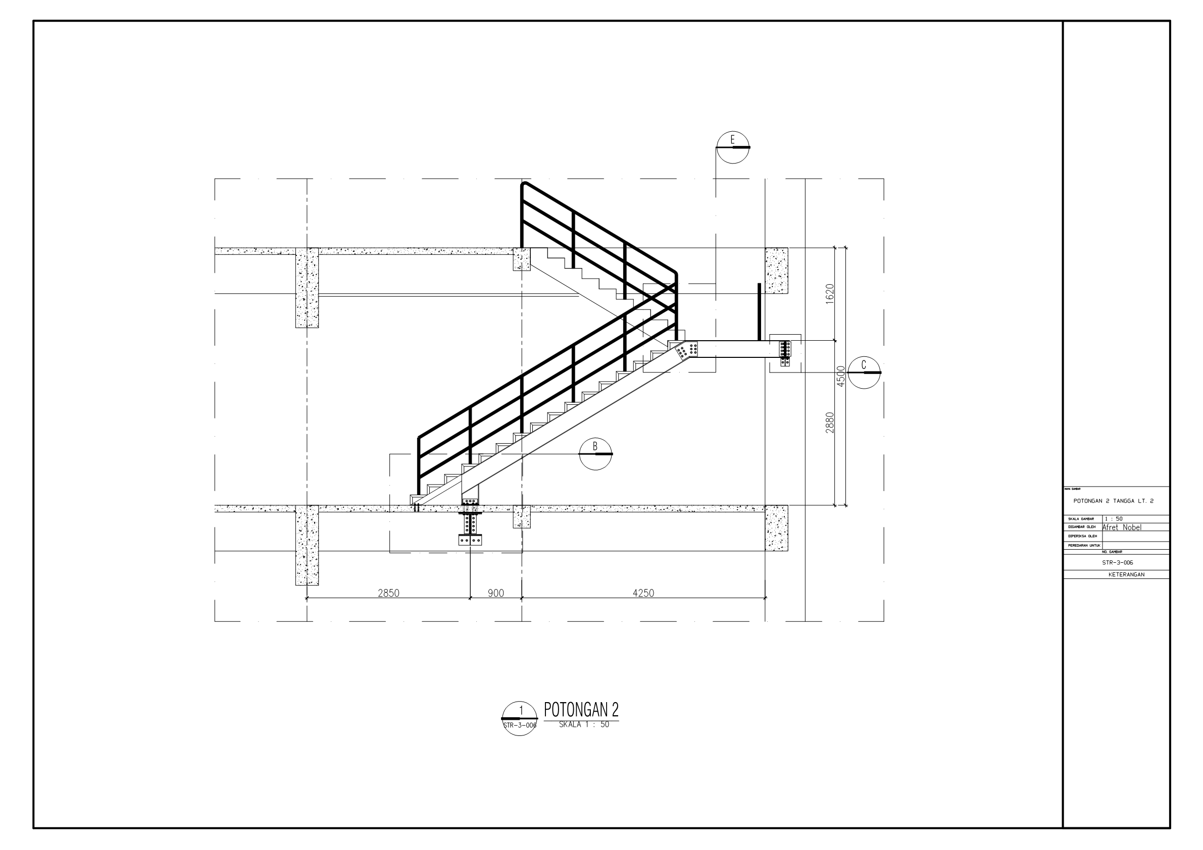
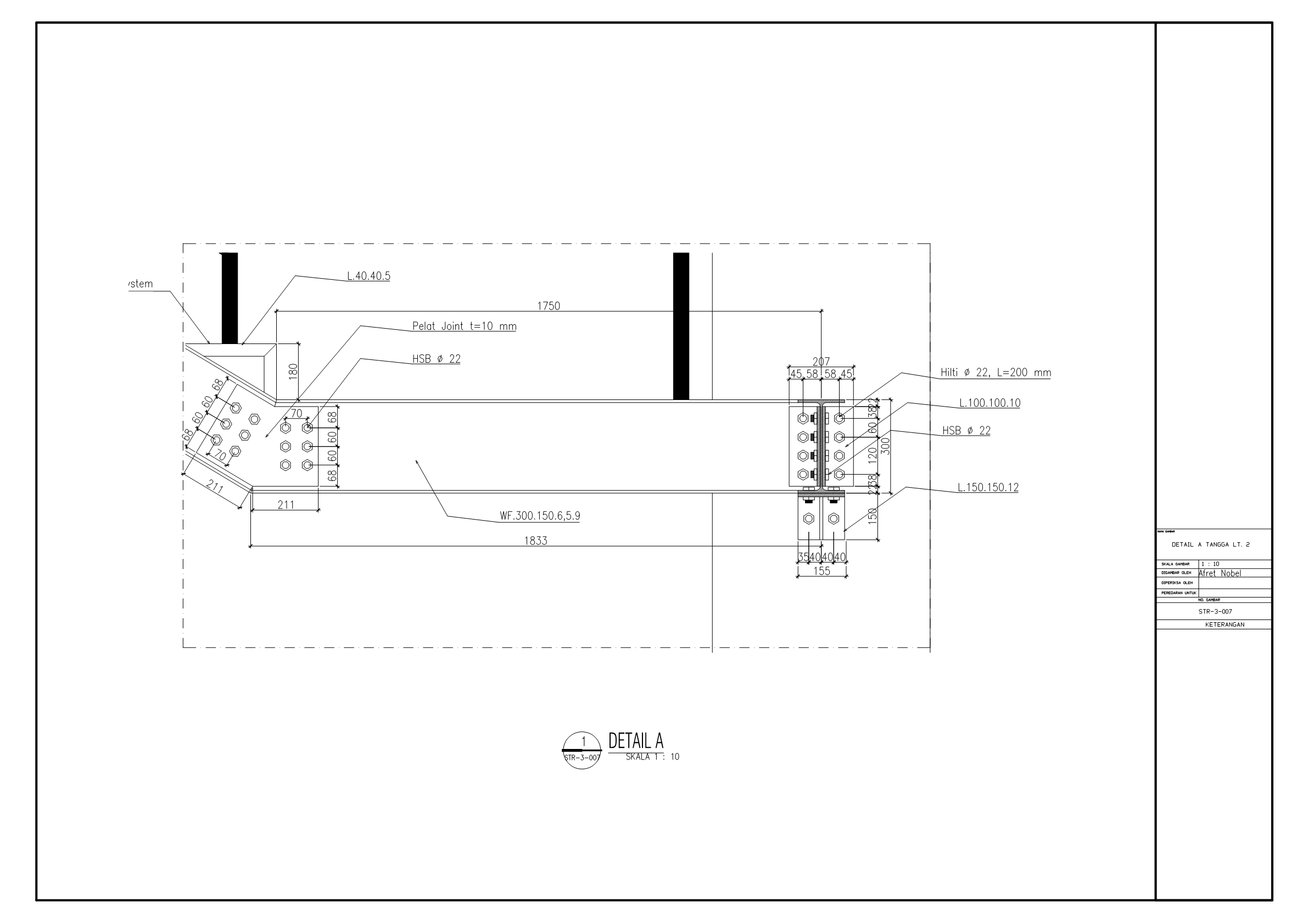
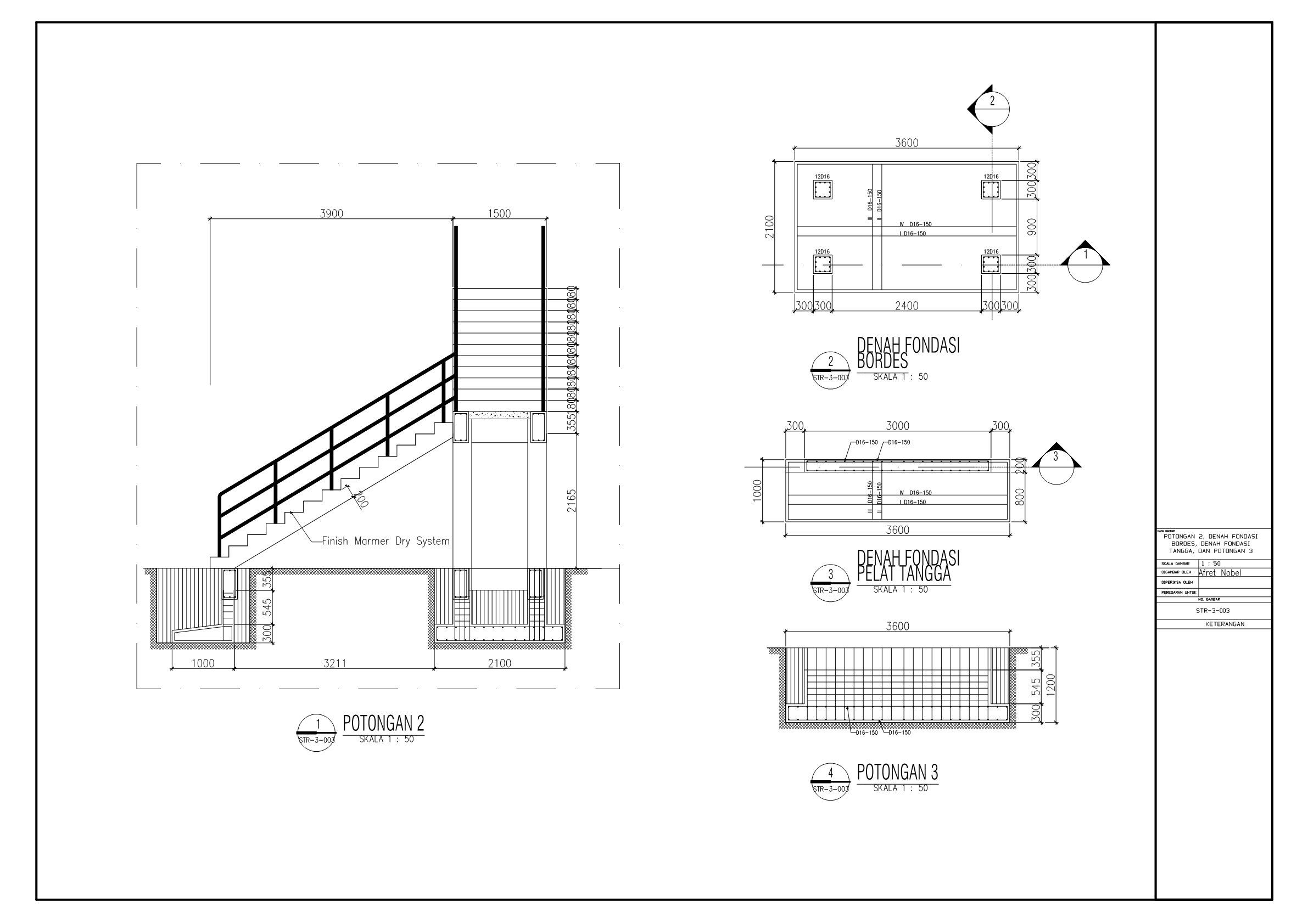
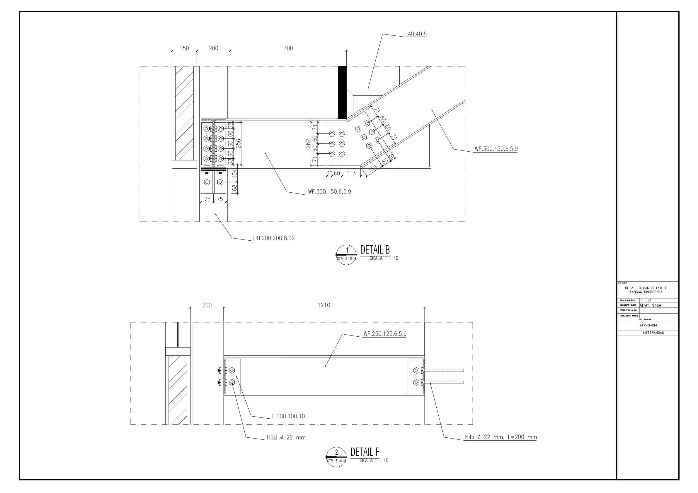
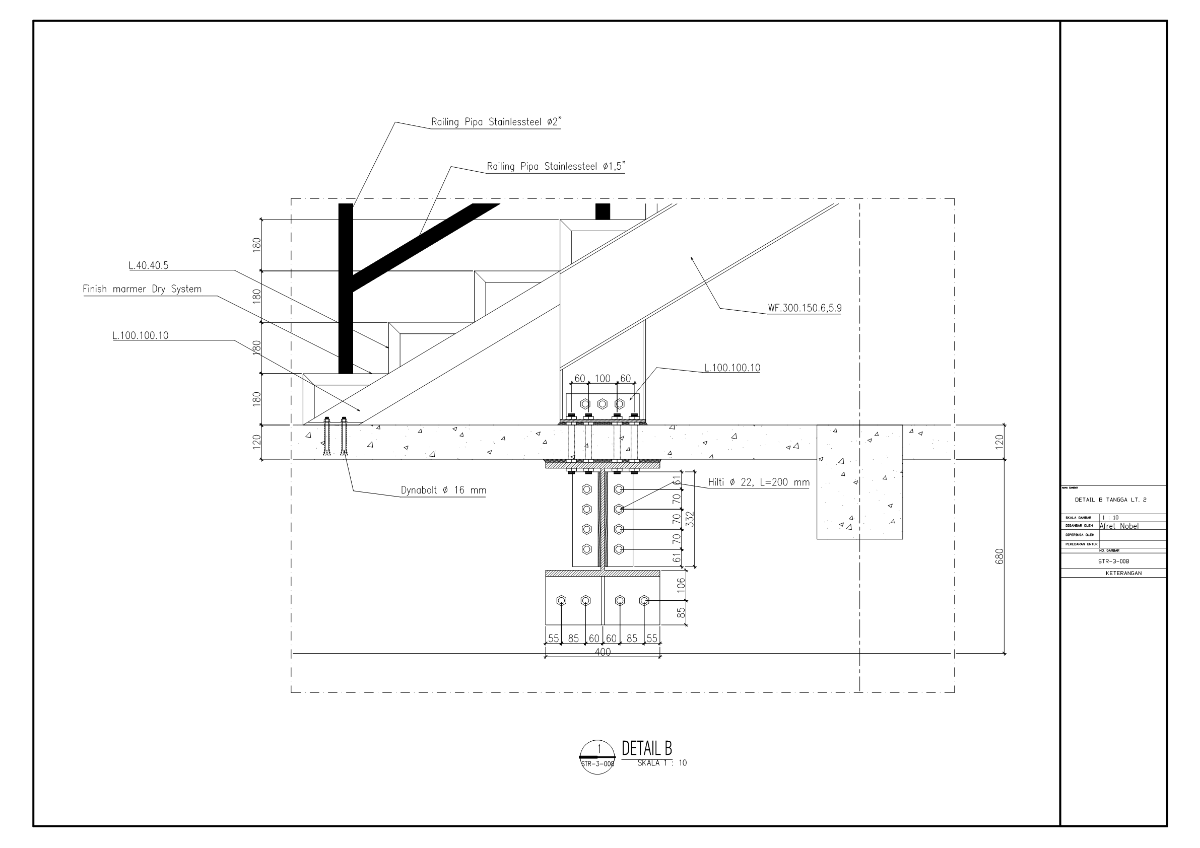
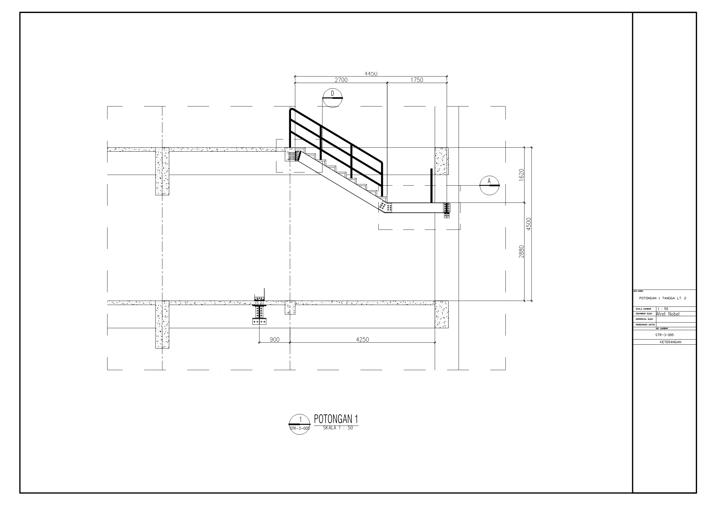
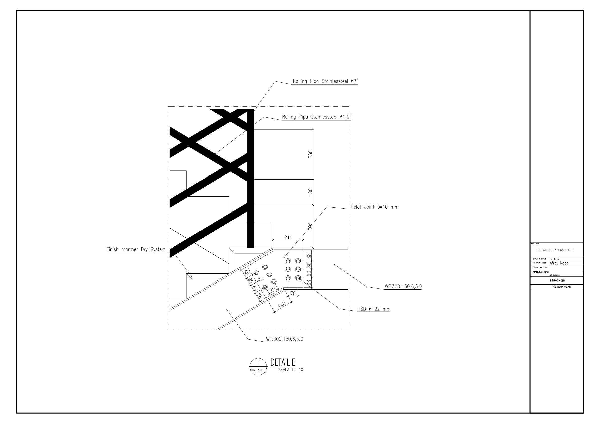
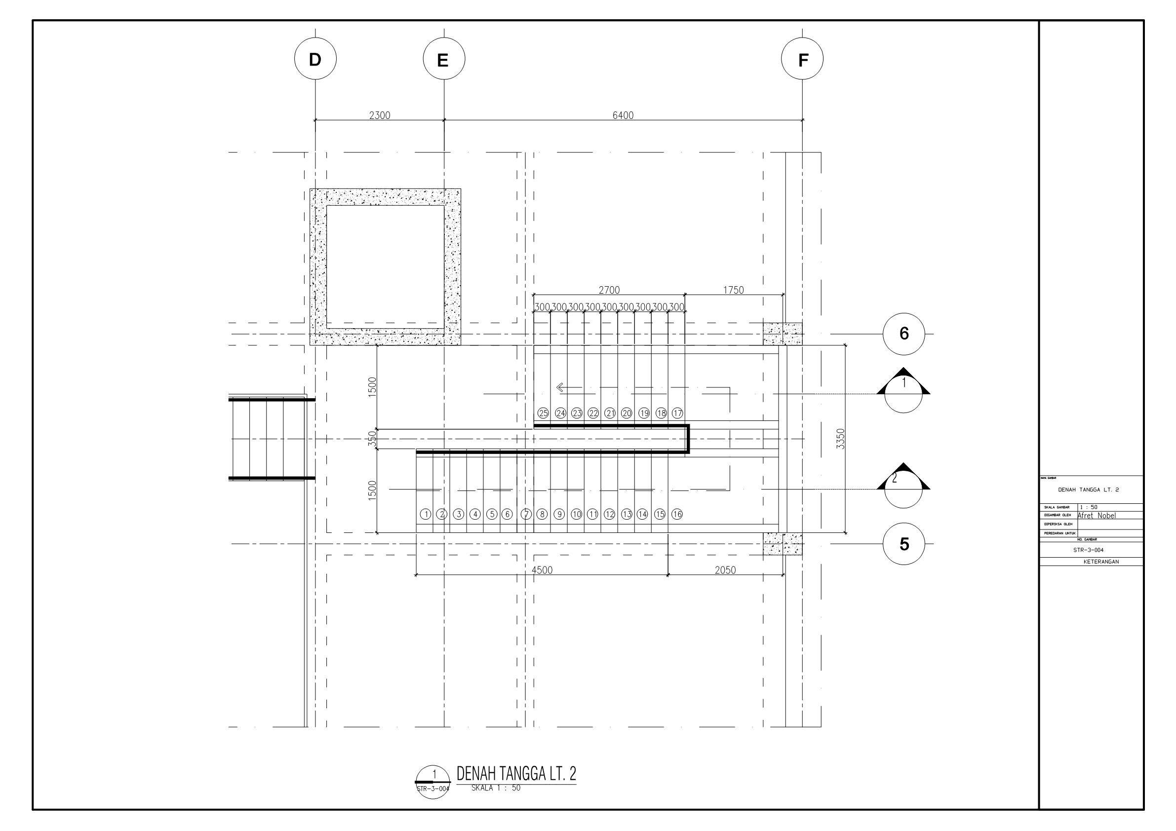
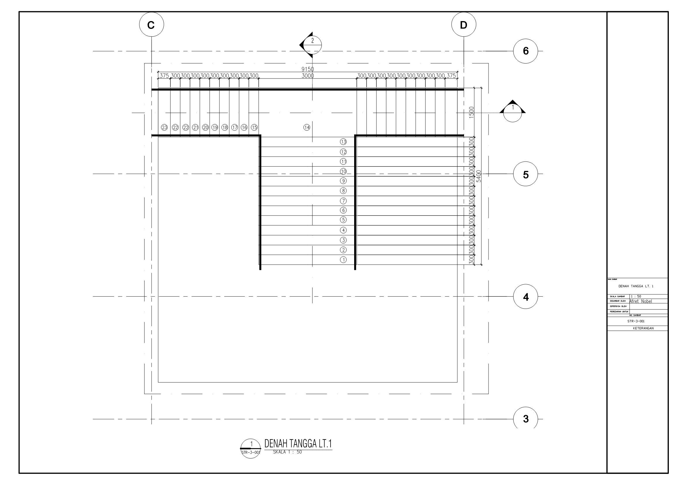
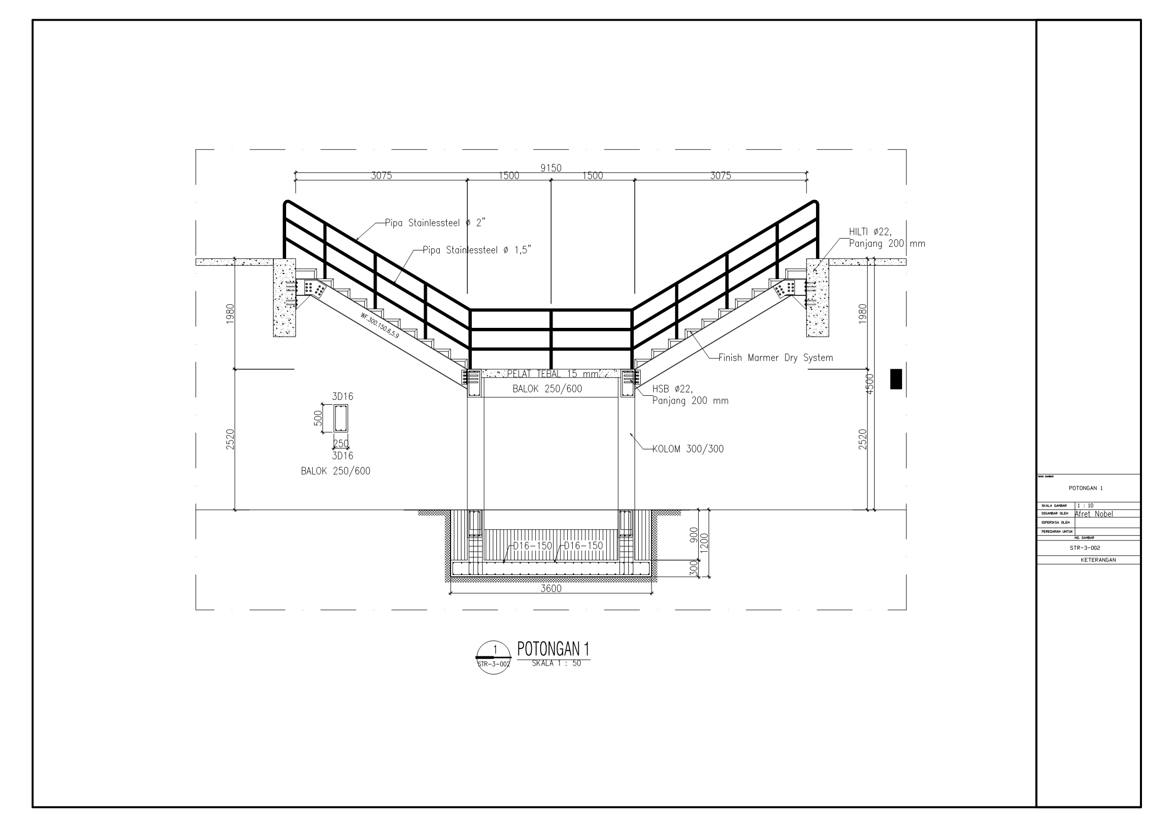
Struktur tangga baja iwf. Menggunakan balok utama ukuran iwf300x150. Anak tangga menggunakan baja profil siku L40.40.5. Railing dengan pipa stainlessteel diameter 2 inch.
Tangga ini merupakan tangga tambahan pada bangunan struktur beton. Sehingga penyambungan antara struktur baja tangga dan struktur eksisting beton digunakan angkur pasca tanam hilti.
Silakan download gambar dalam format pdf disini.
Disclaimer: Setiap bangunan itu unik, kami tidak bertanggungjawab atas penggunaan gambar ini untuk konstruksi bangunan Anda. Silakan konsultasikan ke ahlinya.

















